• Опис
  • Характеристики
  • Наявність у магазинах
  • Відгуки0
0%
Котел твердопаливний сталевий Thermo Alliance Vulcan V 3.0 SF 40
Котел твердопаливний сталевий Thermo Alliance Vulcan V 3.0 SF 40
Thermo Alliance
Артикул: 37357V40V30
Поки немає відгуків
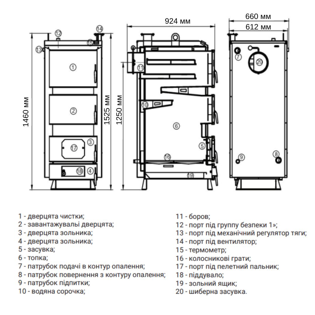
Котел твердопаливний Thermo Alliance Vulcan SF 40 V3.0 — сталевий водогрійний пристрій. Такий котел здатний забезпечити роботу автономної системи опалення для обігріву приміщень площею до 400 кв. м. Завантаження палива (дров, відходів деревини, кам‘яного вугілля, брикет) необхідно виконувати вручну. Пристрій можна переобладнати під автоподача пелет, оскільки в конструкції передбачений порт під пелетний пальник. Колосникові грати розміром 200 х 300 мм (4 шт.) зроблені з чавуну.
Артикул
37357V40V30
Бренд
Характеристики
Основні
Артикул
37357V40V30
Бренд
Інші параметри
Код
SD00050462
Гарантія
36 міс.
Країна виробник
Україна
Країна реєстрації бренду
Україна
Серія
Vulcan
Тип виробу
Твердопаливний котел
Габаритні розміри упаковки (ВхШхГ), мм
1625х655х960
Максимальний робочий тиск, бар
2
Випробувальний тиск, бар
4
Модель
VSF40
Діаметр підключення димоходу, мм
200
Товщина теплоізоляції, мм
40
Потужність, кВт
40
Автоматика
Немає
Вага котла без води, кг
425
Виведення димоходу
Горизонтальний
Вид палива
Дрова, брикети, вугілля
Габаритні розміри котла (ВхШхГ), мм
1525х655х960
Габаритні розміри топки (ВхШхГ), мм
555х420х606
Діаметр підключення до системи опалення
1" 1/2
ККД, %
85
Матеріал теплоізоляції
Мінеральна вата
Механізм скидання золи
Немає
Необхідна тяга в димоході
10-20
Об‘єм води в котлі, л
139
Об‘єм топки, дм³
141,3
Опалювальна площа до, м²
400
Площа теплообміну, м²
3,75
Порт під групу безпеки
1"
Розмір завантажувального вікна (ВхШ), мм
265х420
Сторона відкриття дверей
Ліва
Температура води в котлі (мін./макс.), °C
57/95
Тип колосникових грат
Чавунні
Варильна поверхня
Немає
Димохідна коробка
Немає
Зливний патрубок
3/4" в
Кількість ходів теплообмінника
4 полиці, 3 хода
Кількість чавунних колосників
4
Порт під ТЕН
Немає
Порт під вентилятор
78х118
Порт під пелетний пальник
Є
Порт під регулятор тяги
3/4" в
Розмір колосника, мм
200х300
Товщина стали теплообмінника, мм
6
Наявність у магазинах
Котел твердопаливний сталевий Thermo Alliance Vulcan V 3.0 SF 40
62 857 грн. /шт
В наявності мало
- +
шт
Нова Пошта
Готівковий та безготівковий розрахунок, банківські картки
Быстрый заказ
Відгуки
Хочете залишити відгук?Поставте свою оцінку!
Зробіть вибір!